Bộ điều phối gió Cabin

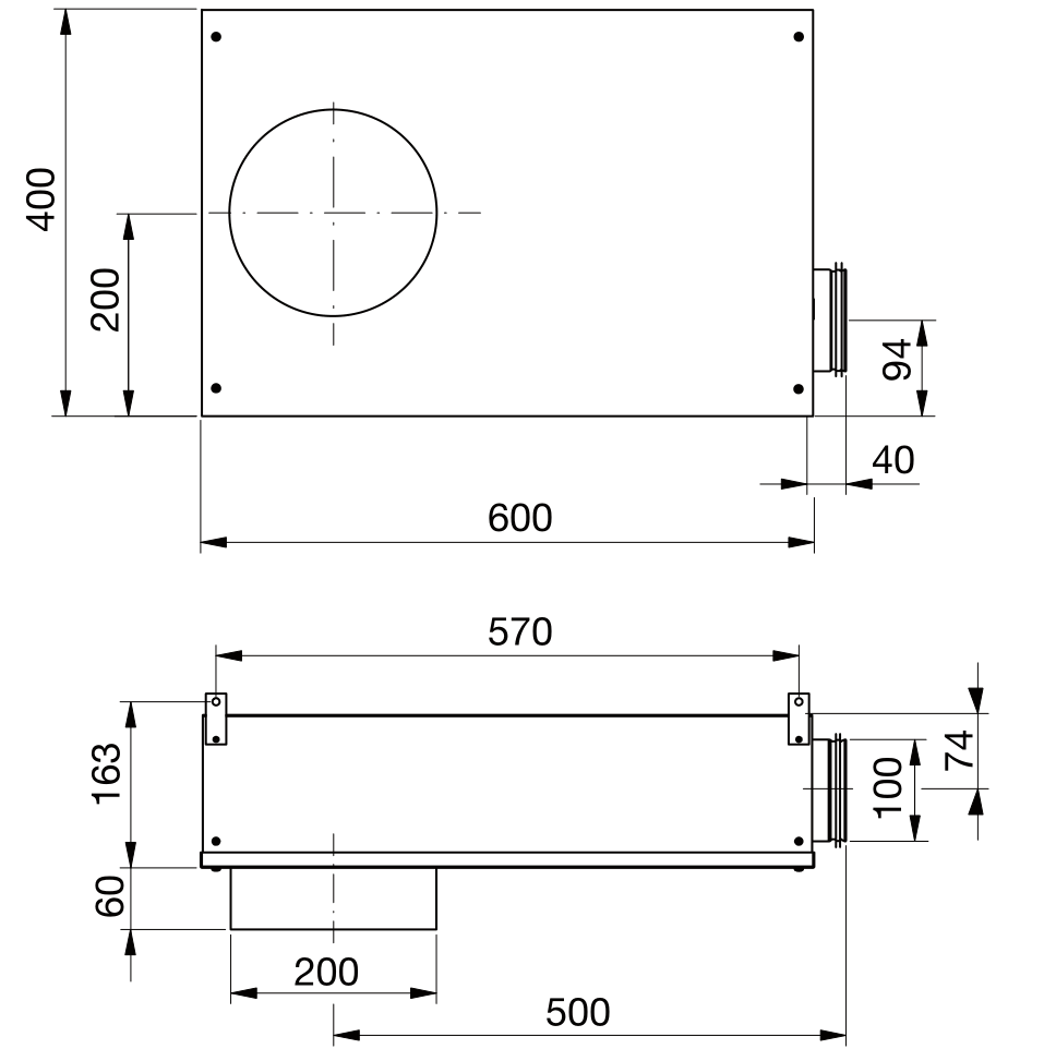
Thiết bị phân phối gió Cabin được thiết kế đặc biệt để sử dụng trong các hệ thống áp suất cao, nơi sự linh hoạt cao phải kết hợp với không gian lắp đặt tối thiểu. Thang đo bên trong cho phép điều chỉnh trước lưu lượng nhằm giảm thiểu chi phí vận hành và lưu hồ sơ cài đặt. Miệng gió khuếch tán đi kèm cho phép người dùng điều chỉnh lưu lượng trong phạm vi đã điều chỉnh trước.

Dòng sản phẩm

DiameterDiameter 3LengthThicknessmItem ID
dDLtm
1002000.8DBZG100001
photo
drawing

Giới thiệu

Các sản phẩm liên quan